電話をかける(携帯・PHS可)
0120-188-900
「ホームページを見て」とお伝え下さい。
お問い合わせ番号をお伝えください
RHS--J2787319
| 特徴 |
|
|---|---|
| 備考 | - |
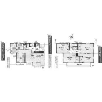
| 採光面 | - | 構造/階数 | 木造/地上2階建 |
|---|---|---|---|
| 建ぺい率 | 60(%) | 容積率 | 150(%) |
| 駐車場 | 有 | 現況/引渡し | 新築/即時 |
| 土地権利 | 所有権 | 私道負担面積 | - |
| 接道状況 | 接道: 北東 公道 道路幅: 5.98m | 用途地域 | 第一種低層住居専用地域
|
| セットバック | - | 法令上の制限 | - |
| 地目 | 宅地 | 地勢 | |
| 建築確認番号 | 第24UDI1W建10374号 | 都市計画 | 市街化区域 |
| 小学校区 | 柏市立西原小学校 (千葉県柏市) |
中学校区 | 西原中学校 (千葉県柏市) |
| 取引態様 | 仲介 | ||
電話をかける(携帯・PHS可)
0120-188-900
「ホームページを見て」とお伝え下さい。
お問い合わせ番号をお伝えください
RHS--J2787319
| 年利率 | % |
||
|---|---|---|---|
| ボーナス払い | 返済年数 |
|
|
| 頭金 | 直接入力する | 万円 | |

毎月のご返済額 |
ボーナス(×年2回) |
物件価格3,699万円 |
電話でお問い合わせ
株式会社ホームオン
|
電話をかける 0120-188-900 ※「ホームページを見て」とお伝えください。 |
お問い合わせ番号をお伝えください RHS--J2787319 |
|---|
【約128万円初期費用軽減】 少しでもお得な不動産購入をお考えの方へ。