スマホで物件を見る

野田市親野井 2号棟|千葉県野田市親野井の新築一戸建て 2,090万円|分譲住宅や新築物件| 株式会社ホームオン

電話からのお問い合わせはこちら
TOPページ > 物件検索 > 新築一戸建て > 野田市 > 東武野田線
新築一戸建て 野田市親野井 2号棟  お気に入り

価格

2,090万円 ローンシミュレーション

所在地

千葉県野田市親野井

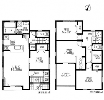
建物面積

109.3m2

土地面積

218.52u

交通

東武野田線 川間駅/バス23分 停歩3分

築年月

2025年築

間取り

4LDK (-)
詳細バナー
ここがおすすめ

【約75万円初期費用軽減】 少しでもお得な不動産購入をお考えの方へ。


  • 呼吸してくれるお家。常に綺麗な空気を循環することで、お家の中を新鮮な環境にしてくれます。
  • 広々としたLDKで家族全員が過ごせる快適な空間をご用意させていただいております。
  • 開放感のあるキッチンスペースは日々の家事がきっと楽しくなるはずです。
  • 浴室はゆったりサイズの一坪タイプ。半身浴も楽しめる浴槽は環境に優しい節水タイプを採用。
  • 光が沢山取り込める大きな窓。2面採光なので、日差しがたくさん取り込める暖かいお部屋です。
  • 暮らしを愉しく、快適に、笑顔になれる空間をご提案します。
  • 採光と通風を考慮した住む人に優しい邸をご確認下さい。
  • 拘りのあるすまい故に奏でる素敵な時間を楽しんで下さい。
  • 一日の中で多くの時間を過すことになる住まいだからこそ、いつも穏やかな空間であるように心掛けています。
  • スタイリッシュかつ機能性も兼ね備えたオープンキッチンを採用。
  • 1度に沢山のメニューが作れて便利な3口コンロ付きのシステムキッチンです。
  • 雨の日でも洗濯物が干せるの乾燥機付きの浴室です。
  • ゆとりの洗面スペースで朝の身支度も快適スムーズに。
  • 整然とした空間演出、オーナー様にとって快適な理想の暮らしの実現をお届けします。
  • 明日への活力を養うベッドルーム。
  • 大きな窓のある洋室。朝日をしっかり取り込んで1日の始まりを伝えてくれます。
  • ゆとりある収納は、持ち物が多い方でもすっきりした生活を送れる筈です。
  • バルコニーに面した温もり溢れる明るいお部屋は、気持ちのいい朝を迎えられそうですね。
  • 2面採光を確保した明るい室内は風通しも良く、居心地の良い空間となっております。
  • 暖かい光が差し込む洋室。リラックスして充実した自分の時間をお過ごしください。
  • 明るく暖かみのある洋室は、安らぎを与えてくれるでしょう。
お問い合わせ、資料請求、見学のお申し込みはこちらから

電話をかける(携帯・PHS可)
0120-188-900
「ホームページを見て」とお伝え下さい。

お問い合わせ番号をお伝えください
RHS--J2780054

内見予約・お問い合わせ

セールスポイント

特徴
  • フローリング
  • 給湯器
  • システムキッチン
  • カウンターキッチン
  • バス・トイレ別
  • シャワートイレ
  • 室内洗濯機置場
  • 浴室乾燥機
  • Wクローゼット
  • 床下収納
  • バルコニー
  • TVドアホン
  • カースペース2台
  • 本下水
  • 個別プロパン
  • カウンターキッチン
  • カースペース2台以上
  • プライスダウン
  • 即引き渡し可
備考 -

物件概要

採光面 - 構造/階数 木造/地上2階建
建ぺい率 60(%) 容積率 150(%)
駐車場 現況/引渡し 新築/即時
土地権利 所有権 私道負担面積 -
接道状況 接道: 南西 2m 公道 道路幅: 6m 用途地域
第一種中高層住居専用地域
セットバック - 法令上の制限 -
地目 地勢 平坦
建築確認番号 都市計画 市街化区域
小学校区 野田市立二川小学校
(千葉県野田市)
中学校区 二川中学校
(千葉県野田市)
取引態様 仲介
情報更新日:2025年11月18日 次回更新予定日:2025年12月02日
※各種情報と差異がある場合は現況優先となります
※物件情報の学区情報について
当サイト物件情報に記載されております通学区域(学区)情報は、国土数値情報ダウンロードサービスが提供する小学校区データ【2010年度】及び中学校区データ【2013年度】を元に加工したものですので、記載情報が現在の学区域と異なる場合がございます。
国土数値情報ダウンロードサービスのWEBサイト上で記述通り、データは必ずしも正確とは言えません。また、通学区域(学区)は毎年見直しの対象となりますので、そちらを踏まえ学区情報は参考としてご活用下さい。
お問い合わせ、資料請求、見学のお申し込みはこちらから

電話をかける(携帯・PHS可)
0120-188-900
「ホームページを見て」とお伝え下さい。

お問い合わせ番号をお伝えください
RHS--J2780054

内見予約・お問い合わせ

この物件でローンシミュレーションする

年利率
ボーナス払い 返済年数
頭金 直接入力する 万円

毎月のご返済額

ボーナス(×年2回)

物件価格

2,090万円
※返済金額はあくまでも目安です。

野田市親野井 2号棟関連の物件をもっと探す

この物件を見た他のお客様はこんな物件も見ています。


電話でお問い合わせ
株式会社ホームオン

電話をかける

0120-188-900

※「ホームページを見て」とお伝えください。
お問い合わせ番号をお伝えください
RHS--J2780054

お問い合わせ

お問い合わせ内容
お問合せ内容必須
【備考欄】
詳細な見学ご希望時間、ご質問、ご希望条件などがございましたらお聞かせ下さい。
(2000文字以内)
お客様情報
お名前必須
連絡先必須 メールアドレス

※ご記入いただいたメールアドレス宛てに、お問合せ内容の確認メールをお送りいたします。
※Yahoo!メールなどのフリーメールをご利用の場合、迷惑メールフォルダに入る場合があります。
 迷惑メールのフォルダ・設定等をご確認下さい。
電話番号
FAX(任意)
個人情報の取扱いについてを必ずご確認ください。内容に同意の上、確認画面へお進みください。

お気軽にお問い合わせください

0120-188-900
物件番号 RHS--J2780054
※「ホームページを見て」
とお伝え下さい。
なぜ仲介手数料が無料?
仲介手数料とは

お家を買う・売る際に必要となる不動産業者に支払うお金です。お家を購入する際には、一般的に仲介手数料が必要となります。弊社がなぜ仲介手数料を最大無料にすることができるのでしょうか?

詳しく見る
マンションカタログ
不動産売却について

店舗紹介

店舗写真

株式会社ホームオン〒270-0163
千葉県流山市南流山4-1-18 103
TEL : 04-7170-4010

会社概要
アクセス
お客様の声
スマートフォン対応

ページ上部へ